Used, Never Erected Steel Metal Building Listings
I have a client in NJ who has two new NUCOR fabrication plant structures for sale. They are ready for Delivery.
The change in our energy focus has opened the opportunity for other industrial applications.
They are designed to manufacture offshore turbine structures and are fully crane-loaded.
Complete I-Beam PEMB Iron Structural Steel
Complete Insulated Wall and Roof Panels
Man doors or Overhead doors not included
You can get more detailed Prints when requested.
Contact me should you have serious interests. Full plan and specification documentation available.
 
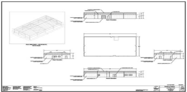
 Building 1: 295’-8” Long x 154’ Wide x 58’-10” Eave Height
 
Life Safety Design Occupant Load and Gross Square Footage Summary
| OCCUPANCY CLASSIFICATION | GROSS SQUARE FEET | DESIGN OCCUPANT LOAD | 
|---|---|---|
| F-1 FACTORY (PRIMARY) | 40,071 SF | 404 | 
| F-1 FACTORY LOCKER ROOMS | 350 SF | 7 | 
| F-1 FACTORY BREAK ROOMS | 562 SF | 38 | 
| B BUSINESS (ACCESSORY) | 829 SF | 6 | 
| S-1 STORAGE - MODERATE HAZARD (ACCESSORY) | 1,381 SF | 4 | 
| TOTAL - (41,795 SF 1ST + 1,398 SF MEZZANINE | 43,193 SF | 459 | 
Wall Roof and Interior Steel & Insulated Panels
Building 2: 425’-5” Long x 213’-5” Wide x 91’ Eave Height
 
Life Safety Design Occupant Load and Gross Square Footage Summary (Use for Egress Calculations)
| OCCUPANCY CLASSIFICATION | GROSS SQUARE FEET | FLOOR AREA ALLOWANCE PER OCCUPANT | DESIGN OCCUPATION LOAD | 
|---|---|---|---|
| F-2 FACTORY (PRIMARY) | 66,700 SF | 100 GROSS SF | 667 | 
| B BUSINESS (ACCESSORY) | 7,400 SF | 150 GROSS SF | 50 | 
| A-2 ASSEMBLY (SEPARATED) | 1,200 SF | 15 NET SF | 80 | 
| S-2 STORAGE - LOW HAZARD (SEPARATED) | 3,650 SF | 300 GROSS SF | 12 | 
| TOTAL | 78,950 SF | 809 | 
Wall Roof and Interior Steel & Insulated Panels
Metal Shop/garage $75,000 Troutdale, OR
Armstrong Steel Building is brand New, Complete, and Not Assembled.
Can be configured as 50' x 100', 50' x 75' or 50' x 50' 12' eaves, 15' ridge
Complete with all steel, siding, roof, and vents, ready to erect on your property.
Complete blueprints with assembly instructions, structural plans, reports, and all necessary information for assembly.
The sale includes gutters with 10 downspouts and all fasteners required to construct.
1-8' heavy-duty sectional garage door, 1-6070 glass double door, 5 steel security man-doors, 2-6030 sliding windows, 3-4030 sliding windows, ridge vents w/bird screen
Steel Building Kit. 16'x20'. New in Crates. - $10,000 (Roseburg (Hucrest))
 
Steel Building Kit from Steel Commander Corp. New in crates/boxes. Garage, Shop, Kennel. Has complete blueprints, blueprints for concrete, and documents to take to the county for permits. 16' x 20' x 12' high. The warranty is still good. I was told 3 people good with tools and a forklift could build it in a couple days. I don't need this building. I bought it for a different location that didn't work out. Picture is similar only, see plan pic for exact detail. It has only the garage door opening. Doors and windows can be added where you want after putting it together. Color is Light Stone sides and trim. Ask me for more information. Open to offers and possible trades. Pictures to be added.
Steel Agricultural building with engineered foundation.
29 x 40‘ steel building frame - $15,000 (Bend)
 
29 foot wide by 40 feet long steel building frame. ( to include.) main frame 6 x 12 beams 20 pound ,six legs at 18 feet high ,and three crossovers at 29 feet. All Perlin and gutter hangers are in place ready for gutters 12 gauge cees and zees 20 foot long and girder clips 3 foot on center and Pearl clips 2 foot on center for roof structure designed for 2 x 12 Doug fir Perlin (note) Perlin‘s not included. All main ,X bracing, nuts and bolts included to assemble.
ARMSTRONG STEEL BUILDING 50x100 NEW
 
$61,500 Bend, OR
Armstrong Steel Building, Brand New, Complete and Not Assembled.
Can be configured as 50' x 100', 50' x 75' or 50' x 50' 14' eaves, 1:12 pitch
Two tone color: Colony & Desert
Complete with all steel, siding, roof, windows, man doors 1 overhead door, vents, ready to erect on your property.
Complete blueprints with assembly instructions, structural plans and report and all necessary information to assemble.
Can easily be reconfigured to accommodate any door configuration and built on concrete pillars or wall to create a taller eave height.
Sale includes gutters w/10 downspouts and all fasteners required to construct.
1-8' heavy-duty sectional garage door, 1-6070 glass double door, 5 steel security man-doors, 2-6030 sliding windows, 3-4030 sliding windows, ridge vents w/bird screen.
Skip the 8-month waiting list.
Will sell for $61,500OBO
Located in Bend, OR
Can load on customer’s trailer
24x24x18 Steel Building
 
$15,000 Molalla, OR
Purchased and never used. Now we are moving and saving for a down payment.
Building is 24x24 with 18’ eves. Tall enough for a second floor inside or big lift. New, this building is close to 22k last I checked. Please reference the drawings for size and door locations. All parts and pieces are there. Door can be moved and garage door can be added. Most of the parts are still in bundles for easy loading. Only thing needed to build this is the butyl tape and some foam closure strips for the roof panels. Also comes with enough roofing metal for a 12’x24’ lean to on one side.
Brand is Olympia Steel Buildings.. Can help load with a tractor. Engineered for Clackamas County so due your research if the loads are the same for your area if you plan to permit the building. Comes with several plans and instructions to build.
Steel Building
 
$149,999 Idaho Falls, ID
60x80x21 Steel Building for sale.
It has 2’ eaves so it’s prepped and ready to build a Shouse. Built for 100lb snow load. Free span so doors/windows can be located anywhere on the building. (3 exterior man doors included. Windows are not included)
Dark Brown Exterior.
All steel for walls and roof included and all insulation. Also included is extra steel to frame in doors/windows.
Can work out delivery options if needed.
Ideal for upper snow areas. MT, ND, WY, Northern ID
30 ft by 65ft fabric building
 
$5,000 Sunnyside, WA
I have a brand new fabric building for sale it’s a heavy-duty tarp with metal posts.
It’s too small for my project. Currently purchasing something bigger. Works great for storing machinery, and keeps animal feed and personal items dry during rain and sun exposure.
Steel Building $67,000 Bonney Lake, WA
 
40'x60' clear-span Steel building with 11' ceilings (higher in the center).
Bought a couple of years ago for a project that fell through and never took delivery.
Still an opportunity to make opening changes. i,e windows, man doors or roll-up garage doors. Take advantage of steel pricing from years ago covered under 50 year warranty. Price is $67k which includes delivery, engineering and changes if any. 
Brand New Shop Building
 
$45,000 Prosser, WA
My husband and I are selling our shop building. We had big plans for this building but are unable to erect it due to prices for everything being so high. We would love to see someone get good use out of it!
Manufacturer: Southwest Steel (Made in Texas)
Building type: Full steel I-beam
Size: 30’W x 42’L x 28’H (20’ ceiling height inside)
4/12 Pitch Roof
Colors: Wall Panels-Burnished Slate. Trim and Roof-Ash Grey
Each end of the building has framed openings for 14’x14’ doors. We designed it this way to easily drive large equipment, RV/5th Wheel, Etc., to pull through from one end to the other.
Building comes with: Stamped Engineered Structural WA State Drawings. Stamped Engineered WA State concrete slab and foundation drawings.
Buyer will be responsible for pickup but we can help load it Everything is still on the pallets it shipped with. 










































